• telefon

    Wie können wir Ihnen weiterhelfen?

    06196 43778

  • detail image
    Verkauft
  • detail image
    Verkauft
  • detail image
    Verkauft

    KAPITALANLAGE! Große 4-ZW in Steinbach!


    61449 Steinbach – OBJEKT-ID: BW1904

    rooms
    4
    Zimmer
    bathroom
    1
    Badezimmer
    bedroom
    3
    Schlafzimmer

    KAPITALANLAGE! Große 4-ZW in Steinbach!

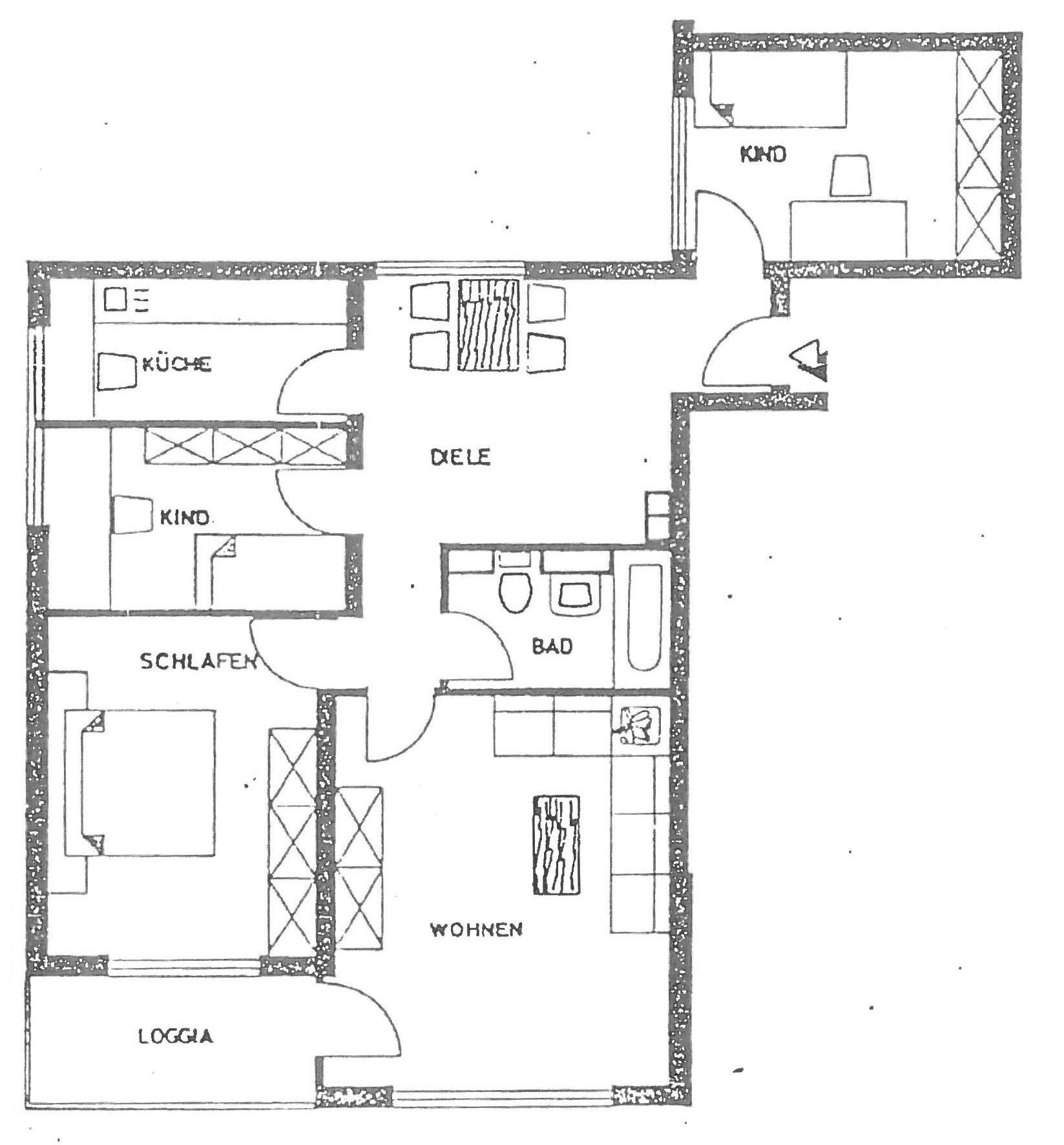
    Die Wohnung befindet sich im 2. OG des Mehrfamilienhauses. Die gesamte Wohnanlage ist sehr gepflegt und besteht aus fünf Häusern.

    Die Wohnung ist sehr gut geschnitten und verfügt über ca. 89 m² die sich wie folgt aufteilen:
    Ein helles Wohnzimmer mit Zugang zur Loggia, ein Elternschlafzimmer, zwei Kinderzimmer sowie Küche und Bad.
    Die beiden Kinderzimmer sind mit einem Vinyl-Designboden versehen. Die restlichen Räume sind mit PVC-Boden in Laminatoptik ausgestattet.

    Vermietet ist die Wohnung seit 2005 an eine Familie mit 6 Personen. Aktuell wird die Miete über das Sozialamt beglichen.

    Zur Wohnung gehört selbstverständlich ein eigener Kellerraum.

    Aktuell beträgt die Jahresmiete EUR 9.720,- (ohne Nebenkosten)
    Der Eigentümeranteil am Hausgeld ca. EUR 1.730,-.


    Baujahr: 1970
     
    Kaufpreis: 270.000,00 €
    Courtage: 2,975% des Verkaufspreises inkl. MwSt.
     
     
    Anzahl Zimmer: 4
    Schlafzimmer: 3
    Badezimmer: 1
     
    Energieverbrauch (Wärmewert): 130 kWh/(m²*a)
    Wertklasse: D
    Primär-Energieträger: Gas
    Heizungsart: Zentralheizung
    Befeuerung: Gas
    Baujahr: Wärmeerzeuger 2016

    Lage

    Die Stadt Steinbach (Taunus), am Fußrand des Naturparks Hochtaunus, liegt sehr zentral im Ballungsraum Rhein-Main. Als südlichste Stadt des Hochtaunuskreises grenzt Steinbach unmittelbar an die Stadt Frankfurt am Main. Die weiteren Nachbarstädte sind Oberursel , Kronberg und die Stadt Eschborn, welche zum Main-Taunus-Kreis gehört.

    Kontakt

    Herr Bodo Weikert steht Ihnen für Fragen rund um dieses Objekt gerne zur Verfügung. 
    Telefon: +49 6196 43778

    Kontaktieren Sie uns!

    Sie haben nicht die richtige Immobilie gefunden?

    Tragen Sie sich gleich in unsere Interessentenkartei ein. Unverbindlich und kostenlos.

    Eintrag in Interessentenkartei
    Zurück zur Angebots-Übersicht
    Diese Webseite verwendet Cookies

    Dazu gehören essentielle Cookies, die für den Betrieb der Seite notwendig sind, sowie andere, die nur für anonyme statistische Zwecke, für Komfort-Einstellungen oder zur Anzeige personalisierter Inhalte verwendet werden. Sie können selbst entscheiden, welche Kategorien Sie zulassen möchten. Bitte beachten Sie, dass aufgrund Ihrer Einstellungen möglicherweise nicht alle Funktionen der Website verfügbar sind. » Datenschutzerklärung » Impressum

    Diese Webseite verwendet Cookies

    Dazu gehören essentielle Cookies, die für den Betrieb der Seite notwendig sind, sowie andere, die nur für anonyme statistische Zwecke, für Komfort-Einstellungen oder zur Anzeige personalisierter Inhalte verwendet werden. Sie können selbst entscheiden, welche Kategorien Sie zulassen möchten. Bitte beachten Sie, dass aufgrund Ihrer Einstellungen möglicherweise nicht alle Funktionen der Website verfügbar sind. » Datenschutzerklärung » Impressum

    Ihre Einstellungen wurden gespeichert.