-
Verkauft
-
Verkauft
-
Verkauft
-
Verkauft
-
Verkauft
-
Verkauft
-
Verkauft
-
Verkauft
-
Verkauft
-
Verkauft
-
Verkauft
-
Verkauft
-
Verkauft
-
Verkauft
-
Verkauft
-
Verkauft
-
Verkauft
-
Verkauft
Rollstuhlgerechtes Einfamilienhaus in Eschborn/Niederhöchstadt!
65760 Eschborn – OBJEKT-ID: BW2039

163 m
2
Grundstücksfläche

165 m
2
Wohnfläche

54 m
2
Nutzfläche

6
Zimmer

2
Badezimmer

3
Schlafzimmer
Das schöne Einfamilienhaus bietet ein komfortables und behindertengerechtes Wohnen.
Der umfangreiche Umbau im Jahr 2011 ermöglicht einen barrierefreien Zugang zum Erdgeschoss und in das 1. OG.
Das Haus bietet Ihnen insgesamt sechs Zimmer auf drei Ebenen, einen Lift vom Gehweg zum Hauseingang und einen Aufzug vom Erdgeschoss ins OG.
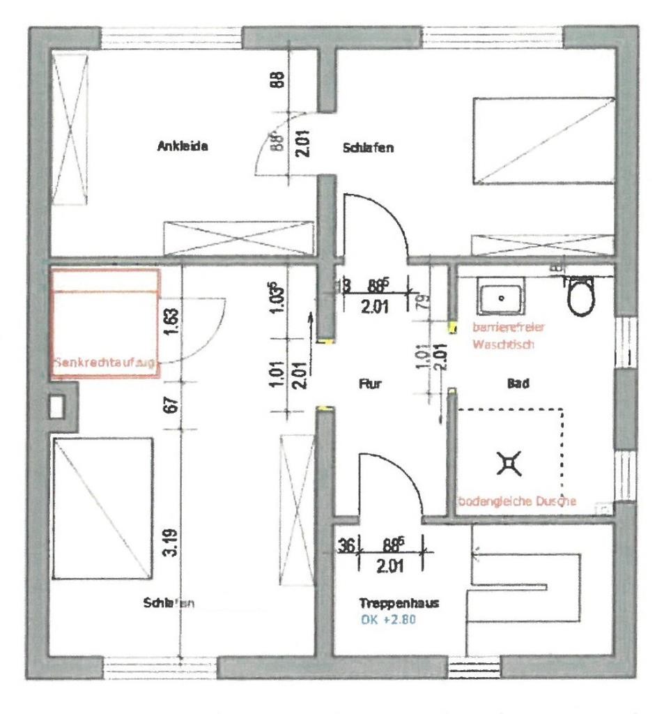
Im Erdgeschoss befindet sich der geräumige Wohn-Essbereich mit der Küche, im 1. OG zwei Schlafzimmer mit Ankleidezimmer und einem Tageslichtbad, ebenfalls rollstuhlgerecht.
Im ausgebauten Dachgeschoss befinden sich zwei weitere Zimmer, eine offene Küche und ein weiteres Tageslichtbad mit Badewanne.
Das Haus ist ideal für Familien oder Personen mit speziellen Wohnbedürfnissen.
Insgesamt stehen Ihnen ca. 165 m² Wohn- und ca. 54 m² Nutzfläche, 5 Kellerräume, sowie zwei Aussenstellplätze zur Verfügung.
| Baujahr: |
1999 |
| |
| Kaufpreis: |
645.000,00 € |
| Stellplätze: |
2 |
| Art des Stellplatzes: |
FREIPLATZ |
| Courtage: |
2,975% des Netto-Verkaufspreises inkl. 19% MwSt. |
| |
| Grundstücksfläche: |
163 m2 |
| Wohnfläche: |
165 m2 |
| Nutzfläche: |
54 m2 |
| |
| Anzahl Zimmer: |
6 |
| Schlafzimmer: |
3 |
| Badezimmer: |
2 |
| |
| Energieverbrauch (Wärmewert): |
122 kWh/(m²*a)
|
| Wertklasse: |
D |
| Primär-Energieträger: |
Gas |
| Baujahr: |
1999 |
Lage
Eschborn ist eine über 21.247 Einwohner zählende Stadt, die am östlichen Rand des Main-Taunus-Kreises und in direkter Nachbarschaft zur Kernstadt Frankfurt liegt. Einerseits modernes Büro- und Handelszentrum im Wirtschaftsdreieck Rhein/Main/Taunus mit der höchsten Zahl der Arbeitsplätze im Kreis, andererseits ist Eschborn eine Stadt im Grünen mit ländlichem Charakter und attraktiver Wohnqualität.
Ein weiterer Standortvorteil ist die günstige Verkehrsanbindung:
Die nächsten Autobahnanschlüsse - A 66, Wiesbaden-Frankfurt bzw. die A 5, Hannover-Frankfurt-Basel - sind ca. 1,5 km, die Frankfurter Innenstadt ca. 10 km und der Frankfurter Flughafen ca. 15 km vom Stadtzentrum entfernt. Im öffentlichen Nahverkehr ist mit zwei S-Bahnlinien (S3 und S4 mit drei Haltepunkten) ebenfalls eine schnelle, direkte Verbindung nach Frankfurt a. M. oder bis Darmstadt oder Kronberg bis Bad Soden möglich.
Diese Lagebeschreibung ist urheberrechtlich geschützt und darf nur von Christoph Samitz Immobilien genutzt werden!
Städtische Einrichtungen:
Die Stadt Eschborn stellt ihren Bürgerinnen und Bürgern eine Vielzahl von öffentlichen Einrichtungen zur Verfügung:
Abenteuerspielplatz, betreute Grundschulen, Bolz- und Spielplätze /Parks, Bürgerzentrum, Erlebnishaus, Jugendzentrum, Kindertagesstätten, Museum, Schulsozialarbeit, Sportanlagen /-hallen, Stadtbüchereien, Stadthalle / Stadtverordnetensitzungssaal, Wiesenbad (Schwimmbad mit Hallenbad)
Mehr Informationen dazu unter www.eschborn.de
Diese Lagebeschreibung ist urheberrechtlich geschützt und darf nur von Christoph Samitz Immobilien genutzt werden!